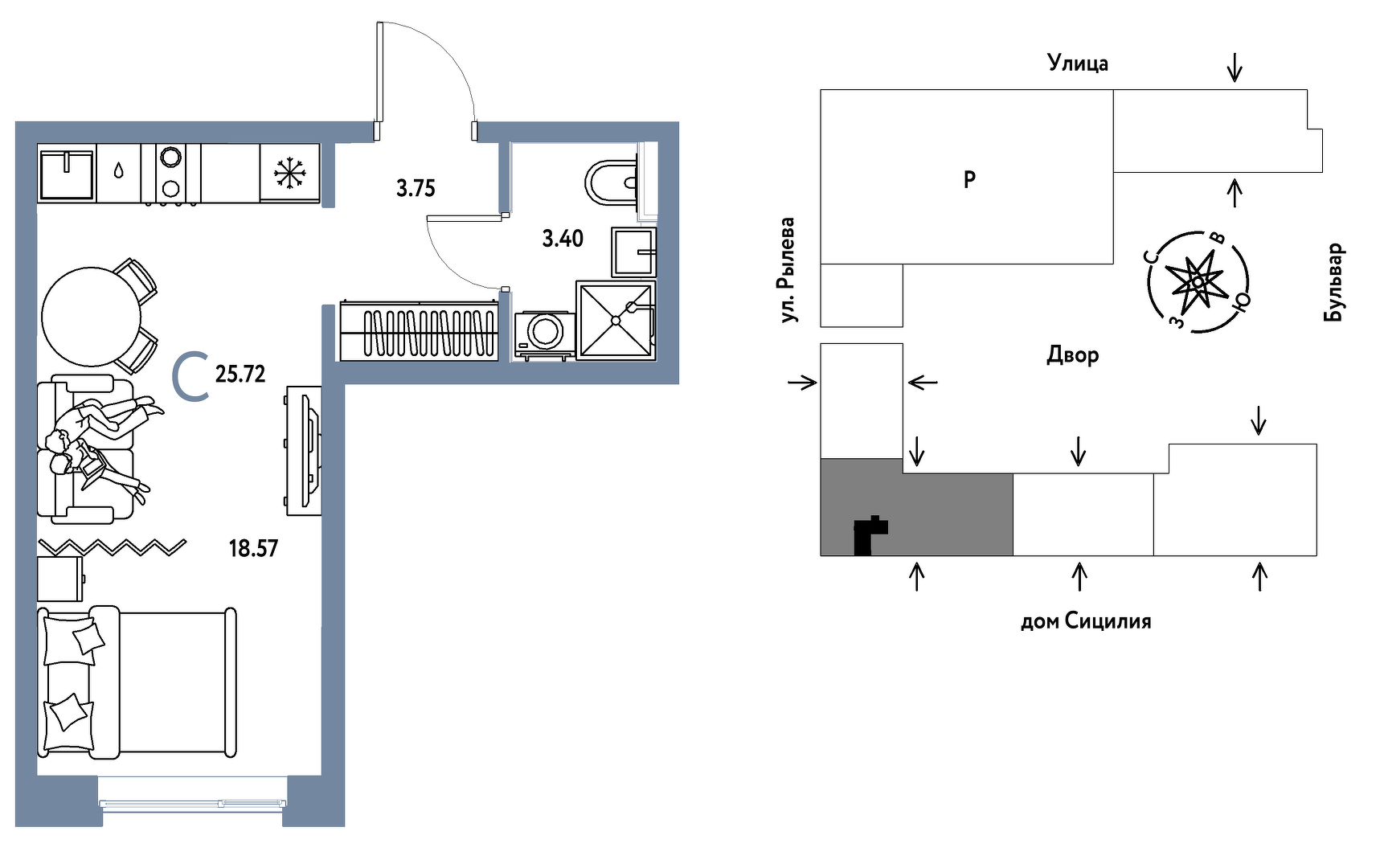
Студия 25.7 м²

4 970 000 ₽ · этаж 8 · ул. Ярославская, д. 9к1 · Сдача: II кв. 2027

ДОК
КомнатностьСтудия
Площадь25.7 м²
Этаж8
Цена4 970 000 ₽
Срок сдачиII кв. 2027

Планировки квартиры

Рендеры проекта

Похожие варианты

Остров-сад

4 970 000 ₽

Студия · 25.7 м² · этаж 8

ул. Ярославская, д. 9к1

Сдача: II кв. 2027

ДОК
Остров-сад

5 000 000 ₽

Студия · 25.7 м² · этаж 9

ул. Ярославская, д. 9к1

Сдача: II кв. 2027

ДОК
Остров-сад

5 000 000 ₽

Студия · 25.7 м² · этаж 9

ул. Ярославская, д. 9к1

Сдача: II кв. 2027

ДОК
Остров-сад

5 000 000 ₽

Студия · 25.7 м² · этаж 12

ул. Ярославская, д. 9к1

Сдача: II кв. 2027

ДОК
Остров-сад

5 000 000 ₽

Студия · 25.7 м² · этаж 12

ул. Ярославская, д. 9к1

Сдача: II кв. 2027

ДОК
Остров-сад

4 910 000 ₽

Студия · 25.7 м² · этаж 6

ул. Ярославская, д. 9к1

Сдача: II кв. 2027

ДОК