Остров-сад
5 430 000 ₽
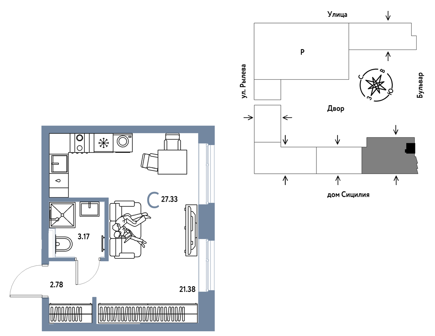
Студия · 27.3 м² · этаж 7
ул. Ярославская, д. 9к1
Сдача: II кв. 2027
ДОК
5 430 000 ₽ · этаж 7 · ул. Ярославская, д. 9к1 · Сдача: II кв. 2027
Студия · 27.3 м² · этаж 7
ул. Ярославская, д. 9к1
Сдача: II кв. 2027
Студия · 27.3 м² · этаж 2
ул. Ярославская, д. 9к1
Сдача: II кв. 2027
Студия · 27.3 м² · этаж 2
ул. Ярославская, д. 9к1
Сдача: II кв. 2027
Студия · 27.4 м² · этаж 11
ул. Ярославская, д. 9к1
Сдача: II кв. 2027
Студия · 27.4 м² · этаж 11
ул. Ярославская, д. 9к1
Сдача: II кв. 2027
Студия · 27.4 м² · этаж 12
ул. Ярославская, д. 9к1
Сдача: II кв. 2027