Сердце Сибири
5 360 000 ₽
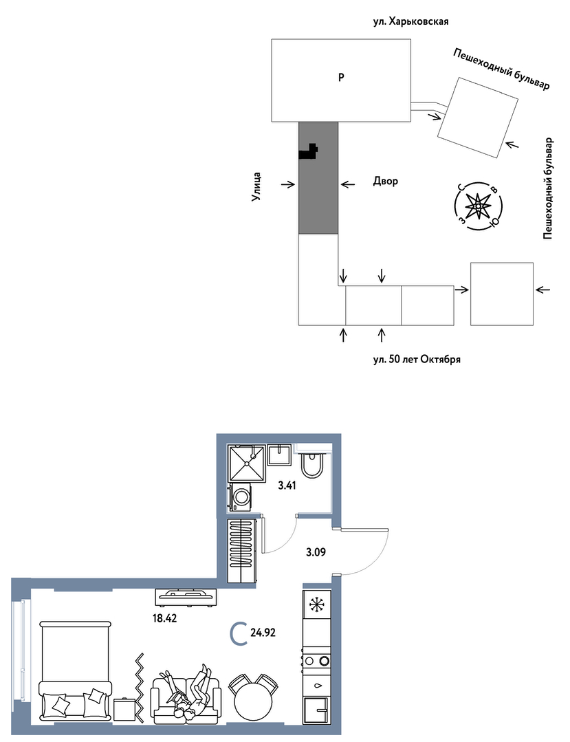
Студия · 24.9 м² · этаж 8
ул. 50 лет Октября, д. 61к1
Сдача: IV кв. 2027
Центр: КПД
5 360 000 ₽ · этаж 8 · ул. 50 лет Октября, д. 61к1 · Сдача: IV кв. 2027
Студия · 24.9 м² · этаж 8
ул. 50 лет Октября, д. 61к1
Сдача: IV кв. 2027
Студия · 24.9 м² · этаж 7
ул. 50 лет Октября, д. 61к1
Сдача: IV кв. 2027
Студия · 24.9 м² · этаж 7
ул. 50 лет Октября, д. 61к1
Сдача: IV кв. 2027
Студия · 24.9 м² · этаж 5
ул. 50 лет Октября, д. 61к1
Сдача: IV кв. 2027
Студия · 24.9 м² · этаж 5
ул. 50 лет Октября, д. 61к1
Сдача: IV кв. 2027
Студия · 24.9 м² · этаж 25
ул. 50 лет Октября, д. 61к1
Сдача: IV кв. 2027